您现在的位置:乐动(中国) » 合阁产品 » 旅游度假系列

TRAVEL VACATION SERIES 旅游度假系列

乐动网

SINCE 2005

建筑无言 品质自现 节能环保

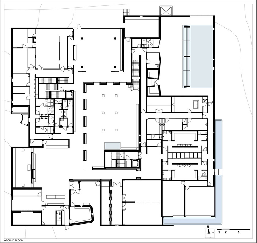
迷宫设计酒店

产品编号:HGMH-011
0
面积:
6300 m2
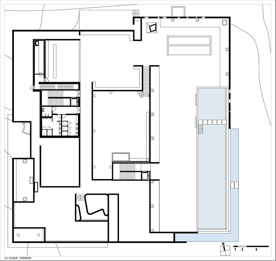
酒店位内有温泉水疗中心、健身中心、健身房、餐厅、酒吧、会议室、室外游泳池和56套独立客房。所有的服务和酒店设施都集中在一栋独立的建筑中,客房之外的地面仅用作交通和绿化。
受当地建筑和阿拉伯建筑的影响,建筑体量方正,入口的门很小,使用完全可回收的栓皮栎木门,从而确保建筑的热工性能。建筑设计围绕大型庭院布局,能够充分利用侧向风和空气循环,从而将能耗降至最低。为了尽可能降低对阿连特茹地区景观的影响,室外游泳池和酒吧位于建筑屋顶。所有56间客房都是套房。
客房零散分布在场地内的树丛中,以一系列经抹灰和粉刷的内部通路相连,这些路径形成了抽象的体积和表面效果。