您现在的位置:乐动(中国) » 合阁产品 » 轻钢龙骨别墅

HEGE PRODUCT 轻钢龙骨别墅

乐动网

SINCE 2005

建筑无言 品质自现 节能环保

双层泳池别墅

产品编号:HGPH2-017
0
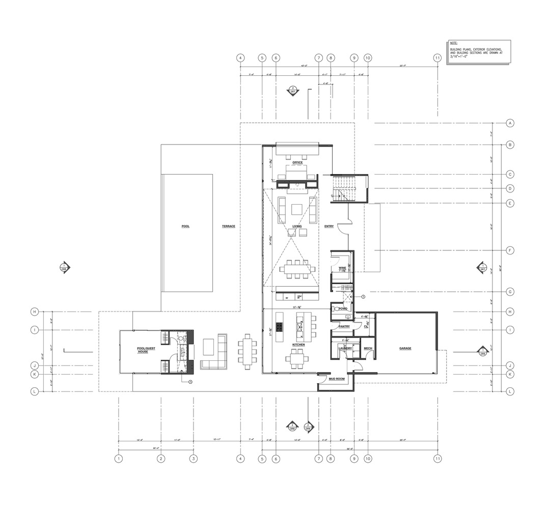
房子主要设计的是公共区域和卧室。主卧室是从孩子们的房间连接一座小桥通往的一个大房间,占用了许多空间。在楼下,有厨房,办公室以及两个开放的泳池,并在大房间装了滑动玻璃门。建筑中的套房,被设想是作为一个玻璃盒子伸出阳台的边缘,同时作为主建筑的屋顶到地面之间的一个独立的建筑。该房间在主楼边,同时能够享受270度的全景景观,并且将间隙空间利用起来建成了户外厨房和休息室,能在露台看到葡萄园的景色。
家庭内部利用温和的气候和最大化采光以及自然通风的机会。从东到西都用玻璃覆盖,这样的设计使得自然光能够渗透到整个空间,在白天就不用使用人工照明。暖气和冷气的交替使用则使得在夏天能够躲开炎热的阳光,同时在冬天能够保持室内的温度。在建筑北侧的森林能够保护屋内隐私同时起到遮阳的作用,在早晨和傍晚也能避免阳光直射。东西外墙的玻璃窗都被最小化,房子采用了冷屋顶和防辐射墙壁,遮阳能够减少热量的吸收使室内温度凉爽。