乐动(中国)
关于我们
公司简介
企业文化
公司架构
荣誉证书
公司实力
生产设备
联系我们
招聘信息
合阁产品
旅游度假系列
酒店公寓
轻钢龙骨别墅
模块化建筑
太空舱系列
民宿
新中式
钢结构
活动板房
节点剖析
夹芯板
乐动网
最新动态
行业知识
市场活动
成功案例
国内工程案例
国外工程案例
室内平面图设计
服务支持
企业视频
联系我们
网站地图
网站地图
∴
全国服务热线
13927294888
微信号:13927294888
您现在的位置:
乐动(中国)
»
合阁产品
»
轻钢龙骨别墅
HEGE PRODUCT 轻钢龙骨别墅
乐动网
SINCE 2005
建筑无言 品质自现 节能环保
旅游度假系列
酒店公寓
轻钢龙骨别墅
模块化建筑
太空舱系列
民宿
新中式
钢结构
活动板房
节点剖析
夹芯板
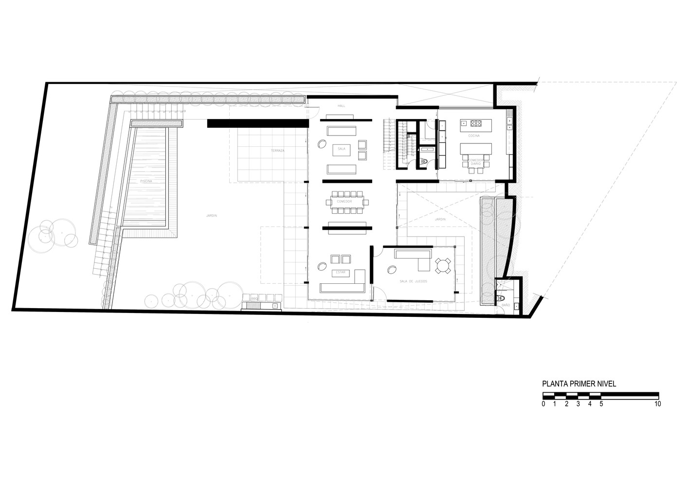
白色现代别墅
产品编号:
HGPH2-036
0
面积:712 m2
钢结构房屋的优势:
钢结构房屋的特点与优点钢结构体系由于具有自重轻、抗震性能好、施工周期短,绿色无污染等方面的优越性,使其在建筑领域得到了广泛的应用。国家经济实力的增强和住宅商品化、产业化的要求,促进了钢结构将成为建筑住宅中最适合的结构体系。
产品描述
米兰网址
|
九游j9官方登录入口
|
乐竞体育网站首页
|
必赢集团网站
|
爱体育在线登录
|
拼搏在线首页
|
乐发官网登录入口
|
开云足球
|
线上买球注册
|