您现在的位置:乐动(中国) » 合阁产品 » 轻钢龙骨别墅

HEGE PRODUCT 轻钢龙骨别墅

乐动网

SINCE 2005

建筑无言 品质自现 节能环保

白色海边别墅

产品编号:HGPH1-003
0
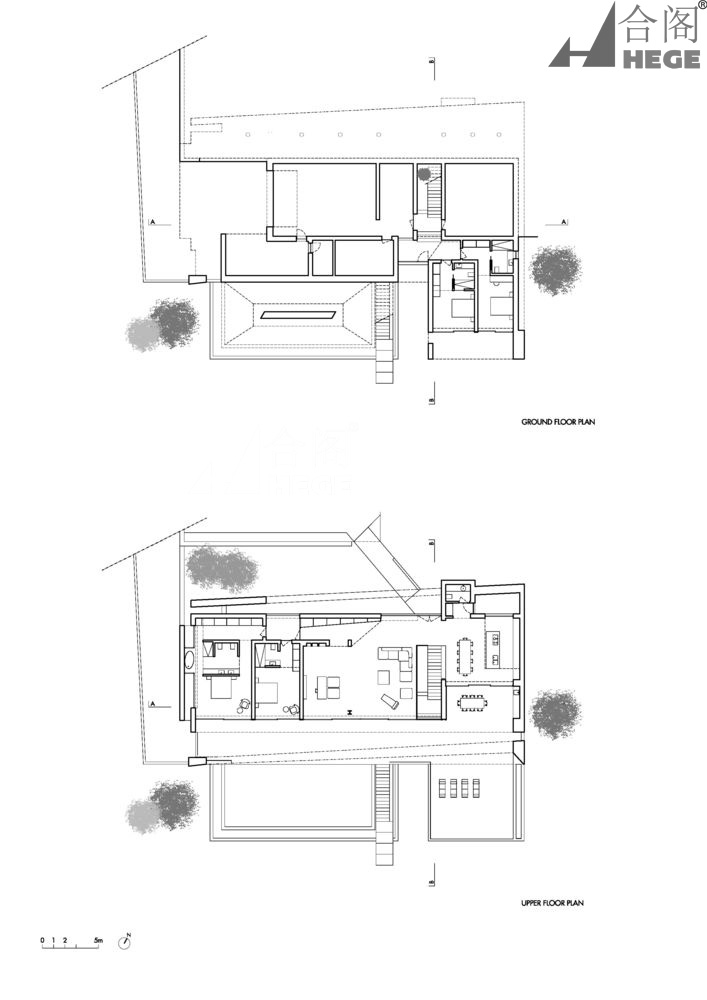
面积: 400 m2
弯曲和动态的形式被处理成粗糙物体雕刻出的生动的立方体,更有棱角的和更长的形态没有失去它们的原本属性,被雕刻在一个平行六面体里。长度超过30米的露台,它的作用是装饰或是一个水平的尖塔,形成代表建筑整体完工的象征。露台,作为房子不可分割的一部分,同时也为一个特殊功能提供了可能性。提供阴影和空间逻辑关系,在这个空间体验者可以向南一直望向大海,客厅和厨房因其功能特性被巧妙地组织在一个开放的空间。悬浮的水池是这个雕塑的一部分,白色中夹杂着大理石的真实性和不规则的图案,这些图案似乎指示了通往入口的路,并标出了进入的区域。