您现在的位置:乐动(中国) » 合阁产品 » 酒店公寓

装配式文体中心大楼

产品编号:HGST-041
0
面积: 7500 m2
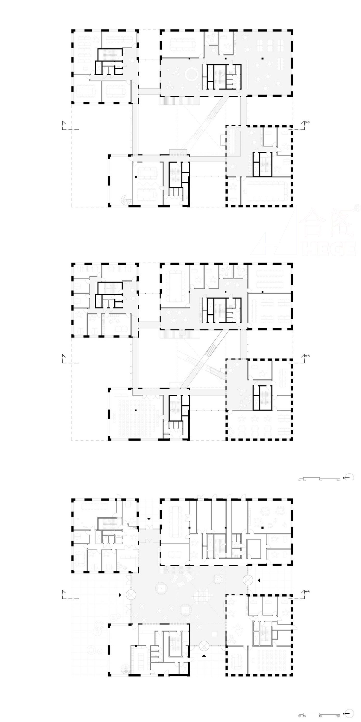
这是一个挑战心灵和身体的建筑,并在建筑与周围环境之间建立起紧密的联系。将体育设施作为“屋顶”,横跨四间房屋,我们创造了一种物质和精神上的分享体验,同时也创造了知识与运动之间的新混合体。
这是四个独立的体量但又在几个方面相互联系:城市的空间漂浮在入口处的建筑物上,交叉的楼梯连接三层高的中庭和顶层公共区域。顶层的体育设施在四座厚重的房屋上方盘旋,并赋予建筑以一种真正具有启发性的身份。当夜幕降临时,一个关于教育、研究和运动的活跃环境的故事拉开了序幕。
一个大天窗将日光照射在公共广场上,那里有一个集社会和行政功能的会议中心,在建筑的中心位置。站在广场上看,建筑中交叉的楼梯是一个额外的空间层。 这栋楼里的每栋房屋都有自己的正面形象。