乐动(中国)
关于我们
公司简介
企业文化
公司架构
荣誉证书
公司实力
生产设备
联系我们
招聘信息
合阁产品
旅游度假系列
酒店公寓
轻钢龙骨别墅
模块化建筑
太空舱系列
民宿
新中式
钢结构
活动板房
节点剖析
夹芯板
乐动网
最新动态
行业知识
市场活动
成功案例
国内工程案例
国外工程案例
室内平面图设计
服务支持
企业视频
联系我们
网站地图
网站地图
∴
全国服务热线
13927294888
微信号:13927294888
您现在的位置:
乐动(中国)
»
合阁产品
»
酒店公寓
旅游度假系列
酒店公寓
轻钢龙骨别墅
模块化建筑
太空舱系列
民宿
新中式
钢结构
活动板房
节点剖析
夹芯板
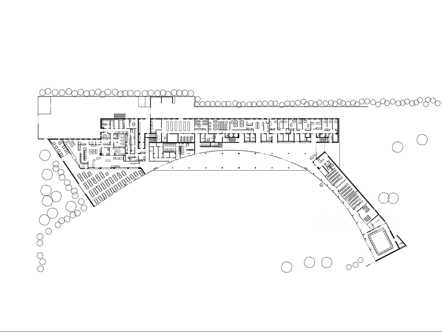
长廊式校区综合楼
产品编号:
HGST-042
0
它由两个独立的建筑组成:一个长长的直线平行六面体位于轻微弯曲的基座上,以呼应场地的地形并与景观融为一体。
建筑底层的玻璃幕墙给建筑带来轻盈感。一层容纳了入口大厅、风雨操场、教育空间、多功能室和食堂。在面向东南和西北的立面上,垂直和水平的木制遮阳板控制着两层教室的采光量。遮阳板的使用增加了立面的厚度,它们的形状也丰富线性建筑的形式。
建筑内部,一个贯通三层楼的中庭为交通空间和教室提供了自然光,与紧凑的建筑形成对比。
产品描述
米兰网址
|
九游j9官方登录入口
|
乐竞体育网站首页
|
必赢集团网站
|
爱体育在线登录
|
拼搏在线首页
|
乐发官网登录入口
|
开云足球
|
线上买球注册
|